人気のある第二小学校まで徒歩約4分と通学も安心してできる距離。今年3月にリニューアルを行い充実した内容に生まれ変わったマンデー末広公園も近く、徒歩圏内では児童公園が点在し、子育てのしやすい環境になっています。
また、最寄り駅の南海本線「泉佐野」駅まで徒歩約11分。周辺にはお買い物に便利な商業施設や医療施設も充実。
高速道路や国道等の主要アクセスも良好で利便性に優れた生活のしやすい高松西エリア。
まちかどモデルハウス 建売を買いたい
関西ホームタウン泉佐野市高松西5号地
3,580万円(消費税・外構工事費込み)
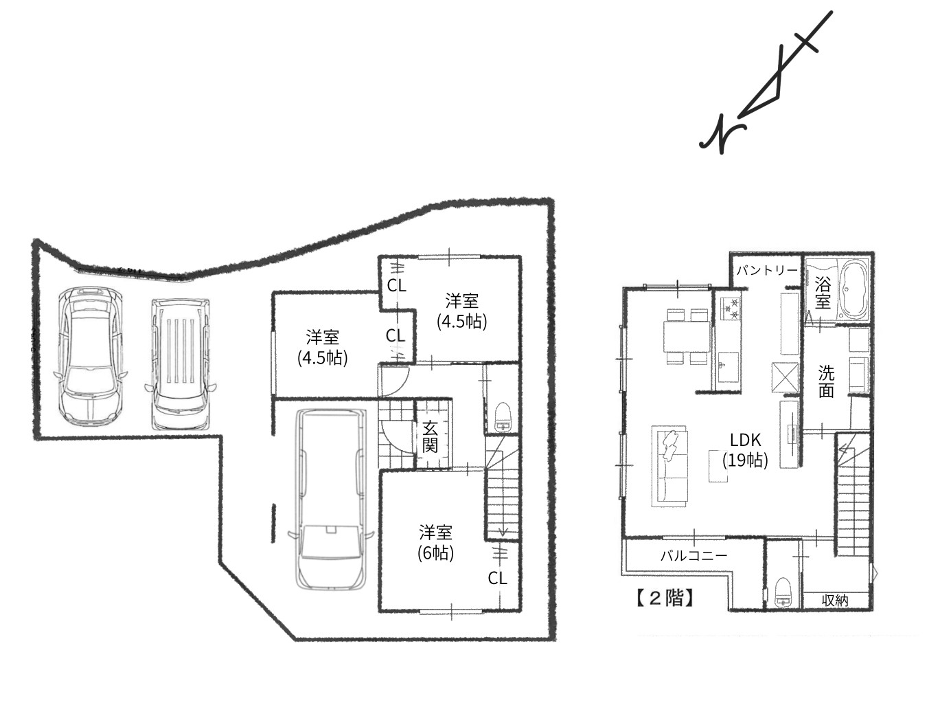
間取り図
「快適×エコを叶える家族思いの住まい」
玄関横には2帖のシューズクロークを設置し、靴やアウトドア用品もすっきり収納。
水まわりは「洗面室」と「脱衣室」を分け、家事や来客時の使いやすさを実現しました。
リビングからは庭へとつながり、家族の団らんや季節の移ろいを楽しめます。
階段はリビング階段を採用し、自然に家族の会話が生まれる工夫も。
さらに、大阪ガスの ソラエネネクスト と 太陽光発電システム を搭載し、環境にも家計にもやさしい暮らしをサポート。冬には 床暖房 が足元から家全体を心地よく温めます。
暮らしやすさと快適さ、そしてエコを両立した住まいを、ぜひご体感ください。
周辺環境
交通
・南海本線泉佐野駅・・・徒歩12分
買い物
・ローソン泉佐野高松西一丁目店・・・徒歩4分
・松源パレード泉佐野店・・・徒歩11分
・コープ泉佐野店・・・自転車5分
・スーパーセンタートライアルりんくうタウン店・・・車5分
・りんくうプレジャータウンシークル・・・車5分
・りんくうプレミアム・アウトレット・・・車5分
学校
・泉佐野市立第二小学校・・・徒歩4分
・泉佐野市立佐野中学校・・・徒歩22分
・清和こども園・・・徒歩11分
・中央保育園・・・徒歩9分
病院
・奥野歯科医院・・・徒歩1分
・佐野記念病院・・・自転車6分
・りんくう総合医療センター・・・自転車7分
公共施設
・高松グランパーク・・・徒歩4分
・泉佐野市役所・・自転車8分
・中央図書館・・・自転車10分
・マンデー末広公園・・・自転車5分
その他
周辺地図
泉佐野市高松西1丁目2053の一部
モデルハウス概要
| 価格 | 3,580万円 |
|---|---|
| 私道負担 | なし |
| 建物面積 | 96.05㎡ |
| 建ぺい率・容積率 | 建ぺい率60%・容積率200% |
| 入居時期 | 令和8年2月末頃予定 |
| 構造・工法 | 木造2階建1戸建 軸組工法 |
| 用途地域 | 第一種住居地域 |
| 総区画数 | |
|---|---|
| 道路 | 前面4.7mアスファルト舗装 |
| 間取り | 3LDK |
| 土地面積 | 126.15㎡ |
| 完成時期(築年月) | 令和8年2月末頃予定 |
| 土地の権利形態 | 所有権 |
| 施工 | 関西ホーム株式会社 |
| 建築確認番号 | - |
|---|---|
| 取引形態 | 売主 |
| その他制限事項 | 都市計画道路有(笠松末広線W=16m) 宅地造成及び特定盛土等規制法 |
| その他概要・特記事項 | 上水道・都市ガス・関西電力・個別浄化槽 ソラエネネクスト・太陽光・床暖房付 |
